Movable

Experimental house - The prototype

Project: direct comission

Construction: March - July 2018
Location:
in the forest, on a green field or in the city
Client: private
Team: Shadi Rahbaran, Ursula Hürzeler, Julian Nieciecki, Lisa Tran, Ilinca Zastinceanu, Eugenio Cappuccio
Structural concept: zpf.Ingenieure, Nico Ros
Building physicist: Institute of Energy in Building, University of Applied Sciences and Arts Northwestern Switzerland- FHNW
Photography: Weisswert, Basel (building completion), Rahbaran Hürzeler Architekten (inhabited)

click to see the short DOCUMENTARY Film
click to listen to the PODCAST


The experimental prototype tackles the reduction of construction material and layers in order to maximize the usable living area, allowing for affordable housing as well as a high level of spatial quality. The space-dividing cores consist of wooden boards only 40 mm thick, which carry the concrete roof slabs. The innovation lies in the use of beech wood veneer boards as the sole load-bearing elements and the development of a special joinery to connect concrete and timber on site.



The Movable House is reduced to an absolute minimum in space, material use and energy consumption to allow for affordable housing as well as high level of spatial and architectural quality. It offers solutions for sustainable urban re-densification through its high degree of structural and functional flexibility, area-efficient floor plans, prefabricated building elements, the use of renewable resources and its simple assembly.

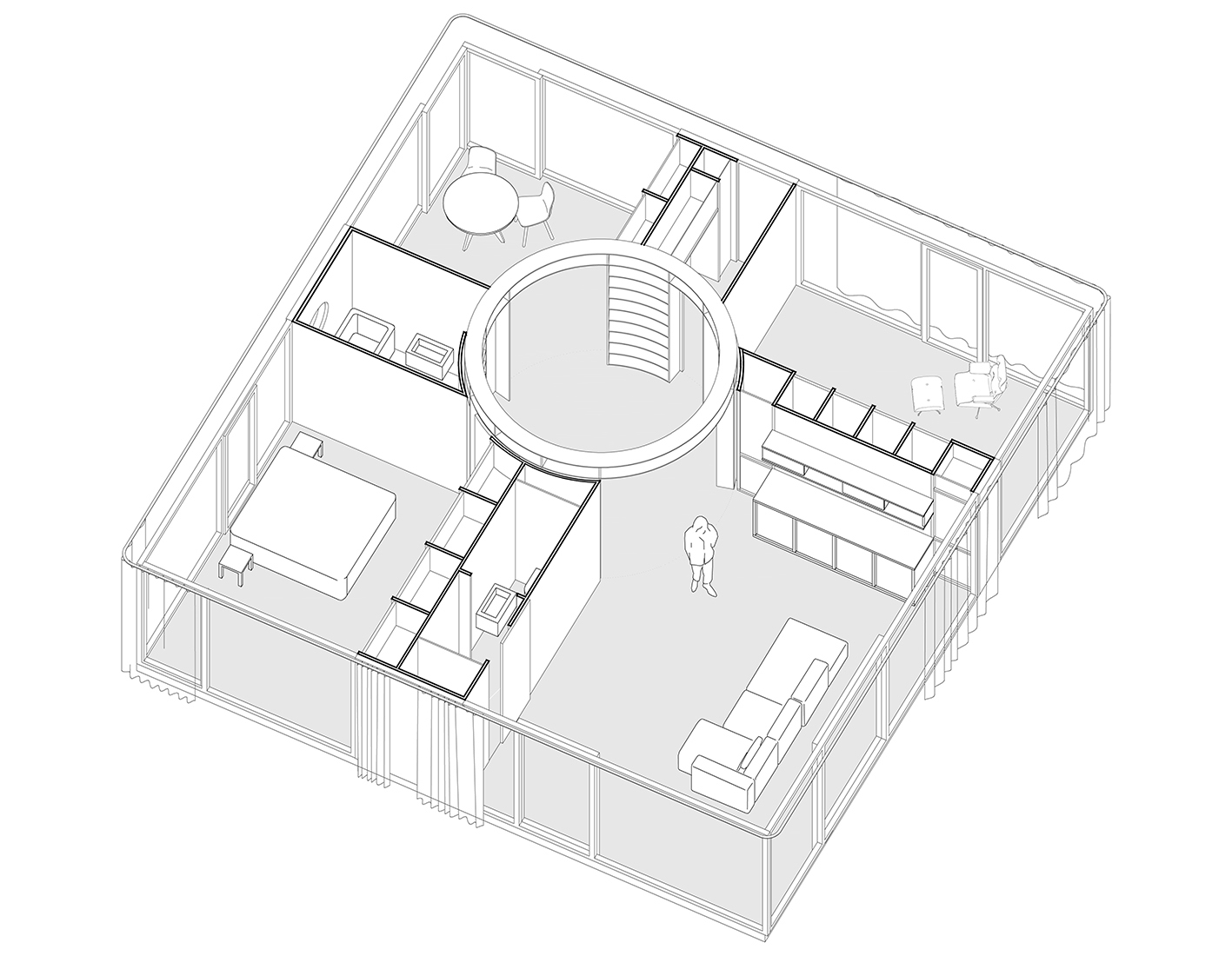
Four cores divide the 10x10m square floor plan into four differently sized rooms. The rooms are connected by a central circular common area and create a generous sequence of spaces on a diagonal axis. The cores are spatial volumes with various functions and their minimal size maximizes the living area, which also allows for installation and structure-free spaces: the cores contain the secondary use areas such as kitchen and bathrooms as well as all of the building services. At the same time they are slender, load-bearing elements of 40mm thick laminated veneer lumber boards that support the concrete roof slab. The untreated and unclad wood volumes and the concrete elements are recognisable as structural parts and define the space through their expressive materiality and surface.

The use of space, material and energy is reduced to an absolute minimum, limiting the CO2 emissions. High-quality, flexible living space for four people is provided on just 100m2, halving the average (Swiss) living area from 46m2 to 23m2 per person. Cladding is avoided throughout and all services are led openly. Renewable energy is gained by PV solar and geothermal systems. The experimental use of phase change materials (PCM) cast in the slabs compensates for the reduced thermal storage mass of such a lightweight building. Most importantly, the structure has been designed for disassembly from the outset: the house consists of prefabricated elements that are joined on site and can later be taken apart again for recycling or reassembly in another location.